船橋展示場(千葉県船橋市)






| 展示場名 | 船橋展示場(千葉県船橋市) |
|---|---|
| 所在地 | 〒273-0865 千葉県船橋市夏見1-3アクセスMAPを見る |
| 電話番号 | 047-422-7691 047-422-7691 |
| 営業時間 | 10:00~19:00(定休日:水曜日) |
| 特徴 |
|
一押しポイント!
船橋駅北口十字路交差点そば、市場通り沿い・船橋駅北口徒歩7分
木質感あふれる住まいを実現した超空間の家
「木」の質感を感じながら居心地のいい開放的なリビング、随所に工夫された見どころ満載のモデルハウスです
船橋展示場(千葉県船橋市)のイベント情報・キャンペーン情報
アクセス
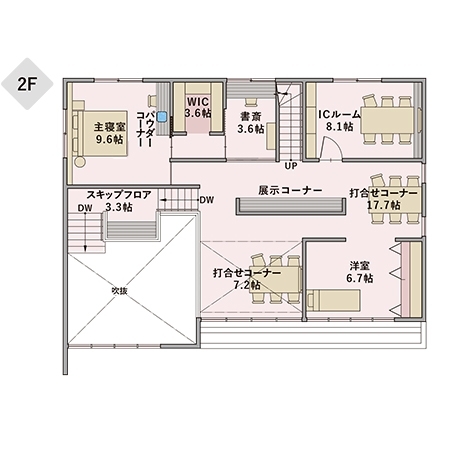
船橋展示場(千葉県船橋市)の間取り
こちらの展示場は我々が担当しています。
| 支店名 | アキュラホーム千葉中央支店 |
|---|---|
| 所在地 | 〒271-0091 千葉県松戸市本町18-4 NBF松戸ビル5FGoogle Mapで見る |
| 電話番号 | 047-308-7061(営業時間:10:00~19:00、水曜定休日) |
| FAX番号 | 047-308-7065 |
船橋展示場(千葉県船橋市) 担当者から一言
木質感あふれる高い天井と大きな窓が魅力の「超空間の家」5.3mもの開放的な超空間リビングは、高い耐震性を保ちながら実現されています。
明るい自然光が差し込み、家族や友人とのコミュニケーションを豊かにする空間です。
また、キッチンから洗面コーナーへの動線を効率的に設計した「楽々家事動線」は、日々の家事負担を最小限に抑えます。
主寝室から続く書斎は、家族と程よく繋がれるよう室内窓を備え、作業が捗る大人のプライベート空間です。
オリジナル全館空調システムにより、家中どこにいても快適な室温で豊かな暮らしを叶えます。




