モデルハウス見学会
【埼玉エリア】リアルモデル見学会

- 開催日
- 2025.09.01~2026.02.28
- 開催時間
- 10:00~19:00
- 開催場所
- 埼玉県内のリアルモデル
リアルモデル見学会
まちかどアキュラホームで
リアルサイズの建物を体感してみよう!
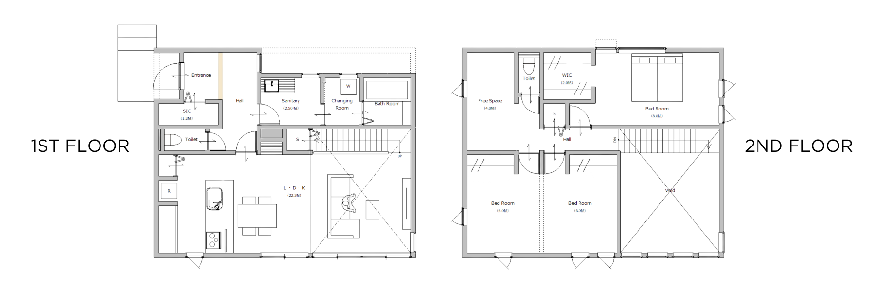
● 桶川モデル ●


[ 建物 ]
2階建3(4)LDK / 36坪 / 駐車スペース1台
[ 所在 ]
埼玉県桶川市下日出谷61-5
[ POINT ]
・広々21帖LDKと4.5帖吹抜けの大空間
・開放的なオープンキッチン
・使い勝手抜群!W1200洗面カウンター
・太陽光4.4kW+全館空調+乾太くん
● 熊谷モデル ●


[ 建物 ]
2階建2(3)LDK / 34坪 / 駐車スペース1台
[ 所在 ]
埼玉県熊谷市玉井1973-242
[ POINT ]
・吹抜け10帖で圧巻の大空間に
・22帖の広々とした団らんLDK
・洗面脱衣別で気兼ねなく使える水回り
・太陽光3.5kW+オール電化+全館空調
● 新所沢モデル ●


[ 建物 ]
2階建3LDK / 29坪 / 駐車スペース1台
[ 所在 ]
埼玉県所沢市緑町4-15-12
[ POINT ]
・温かな陽の光が差し込む20帖LDK
・オープン階段でより開放的に
・ゆったり使える便利な土間収納
・太陽光3kW+オール電化+全館空調
リアルモデルでは、住宅展示場では分かりづらかった30坪台の間取り・採光・風通しなどを体感できます。
お客様にとってピッタリの間取りや土地の広さをご検討いただくため、ぜひご活用ください。
リアルモデル自体を購入いただくことも可能なので、どうぞお気軽にご見学ください!
※現地にスタッフはおりませんので事前予約をお願いします
↓
リアルモデル見学会
まちかどアキュラホームで
リアルサイズの建物を体感してみよう!
● 桶川モデル ●


[ 建物 ]
2階建3(4)LDK / 36坪 / 駐車スペース1台
[ 所在 ]
埼玉県桶川市下日出谷61-5
[ POINT ]
・広々21帖LDKと4.5帖吹抜けの大空間
・明るくて開放的なオープンキッチン
・W1200洗面カウンターで使い勝手◎
・ 太陽光4.4kW+全館空調+乾太くん
● 熊谷モデル ●


[ 建物 ]
2階建2(3)LDK / 34坪 / 駐車スペース1台
[ 所在 ]
埼玉県熊谷市玉井1973-242
[ POINT ]
・10帖の吹き抜けで圧巻の大空間に!
・大開口窓のある22帖の広々団らんLDK
・洗面脱衣別で気兼ねなく使える水回り
・太陽光3.5kW+オール電化+全館空調
● 新所沢モデル ●


[ 建物 ]
2階建3LDK / 29坪 / 駐車スペース1台
[ 所在 ]
埼玉県所沢市緑町4-15-12
[ POINT ]
・温かな陽の光が差し込む20帖LDK
・オープン階段でより開放的空間に
・ゆったりと使える便利な土間収納
・太陽光3kW+オール電化+全館空調
リアルモデルでは、住宅展示場では分かりづらかった30坪台の間取り・採光・風通しなどを体感できます。
お客様にとってピッタリの間取りや土地の広さをご検討いただくため、ぜひご活用ください。
リアルモデル自体を購入いただくことも可能なので、どうぞお気軽にご見学ください!
※現地にスタッフはおりませんので、事前にご予約をお願いいたします。
↓