守谷展示場(茨城県守谷市)








| 展示場名 | 守谷展示場(茨城県守谷市) |
|---|---|
| 所在地 | 〒302-0109 茨城県守谷市本町241-1 (守谷住宅公園内)アクセスMAPを見る |
| 電話番号 | 0297-47-8051 0297-47-8051 |
| 営業時間 | 10:00〜19:00(定休日:水曜日(祝日を除く)) |
| 特徴 |
|
一押しポイント!
「温故知新」をイメージしたデザインで住みごこち抜群。趣きある和モダンの住まい。
和のテイストを随所に散りばめた落ち着きある佇まいと、
最新の建築技術を活かした遊び心あふれる空間が絶妙に調和。
日本ならではの文化も大切にしながら、住みごこちのよさも追求し、
これまでにない新しい暮らし方をご提案します。
守谷展示場(茨城県守谷市)のイベント情報・キャンペーン情報
アクセス
アクセス
〒302-0109 茨城県守谷市本町241-1 (守谷住宅公園内)現在地からの経路を調べる
電車でお越しの方
つくばエクスプレス・関東鉄道常総線でお越しの方は、 「守谷駅」下車 徒歩10分
お車でお越しの方
谷和原ICより10分
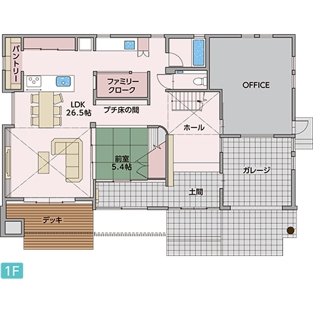
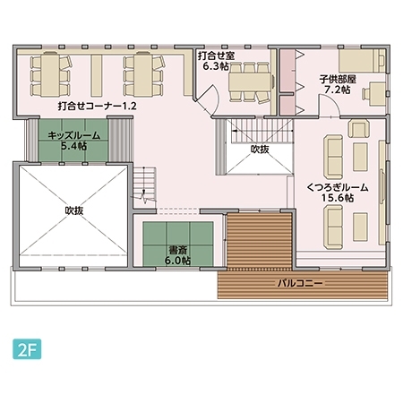
守谷展示場(茨城県守谷市)の間取り
こちらの展示場は我々が担当しています。
| 支店名 | アキュラホーム茨城支店 |
|---|---|
| 所在地 | 〒305-0817 茨城県つくば市研究学園4丁目2-5Google Mapで見る |
| 電話番号 | 029-850-3701(営業時間:10:00~19:00、水曜定休日) |
| FAX番号 | 029-850-3702 |
守谷展示場(茨城県守谷市) 担当者から一言
独自の住宅合理化システムにより、トータルコストダウンを徹底しました。
ムリのない予算で心豊かな暮らしを叶える住まいです。
快適な動線を体感できる普及型純木造ビルで、安心と価格を両立したアキュラホームの家づくりをご体感ください。




