NEW
上尾展示場(埼玉県上尾市)


















| 展示場名 | 上尾展示場(埼玉県上尾市) |
|---|---|
| 所在地 | 〒362-0007 埼玉県上尾市久保49-1 (上尾ハウジングステージ内)アクセスMAPを見る |
| 電話番号 | 048-779-6881 048-779-6881 |
| 営業時間 | 10:00〜19:00(定休日:水曜日(祝日を除く)) |
| 特徴 |
|
一押しポイント!
リビングをもっと広く、高く。
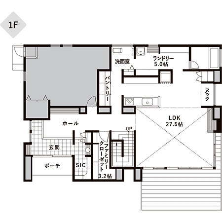
広々とした29.5帖のLDKは、吹抜けと柱のない設計によって、より一層の開放感を実現。天井まで届く大きな窓から自然光が降り注ぎ、明るく心地よい空間が広がります。家族の気配を感じながら時間をゆったりと過ごせるのが魅力。贅沢な広がりを体感できる空間です。
上尾展示場(埼玉県上尾市)のイベント情報・キャンペーン情報
アクセス
アクセス
〒362-0007 埼玉県上尾市久保49-1 (上尾ハウジングステージ内)現在地からの経路を調べる
電車でお越しの方
JR高崎線 「北上尾駅」より徒歩5分
お車でお越しの方
国道17号久保交差点そばBS通り沿い
上尾展示場(埼玉県上尾市)の間取り
上尾展示場(埼玉県上尾市)のおすすめ体感ポイント
こちらの展示場は我々が担当しています。
| 支店名 | アキュラホーム埼玉中央支店 |
|---|---|
| 所在地 | 〒331-0052 埼玉県さいたま市西区三橋5丁目976-1Google Mapで見る |
| 電話番号 | 048-620-4541(営業時間:10:00~19:00、水曜定休日) |
| FAX番号 | 048-620-7371 |
上尾展示場(埼玉県上尾市) 担当者から一言
「子育てに配慮した、心地良く暮らせる住まい」をコンセプトとして設計されました。
深い軒や開放感のある空間デザイン、そして自然との共生にこだわった、家族が快適に暮らせる住まいです。





